Leirviksgatan 33
Kista

Leirviksgatan 33

Butik/kontor

Nyproducerad lokal om 110 kvm med hög takhöjd och stora glaspartier – perfekt för butik, kontor eller service.

Yta (kvm)
110 m²
Hyra (kr/år)
275 000
möjlighet till kontorsverksamhet
Möjlighet till service verksamhet såsom städfirma
Möjlighet till butiks verksamhet
Fasaden
Visa alla bilder

Etablera din verksamhet i nyproducerat område – 110 kvm med stora glaspartier

Beskrivning

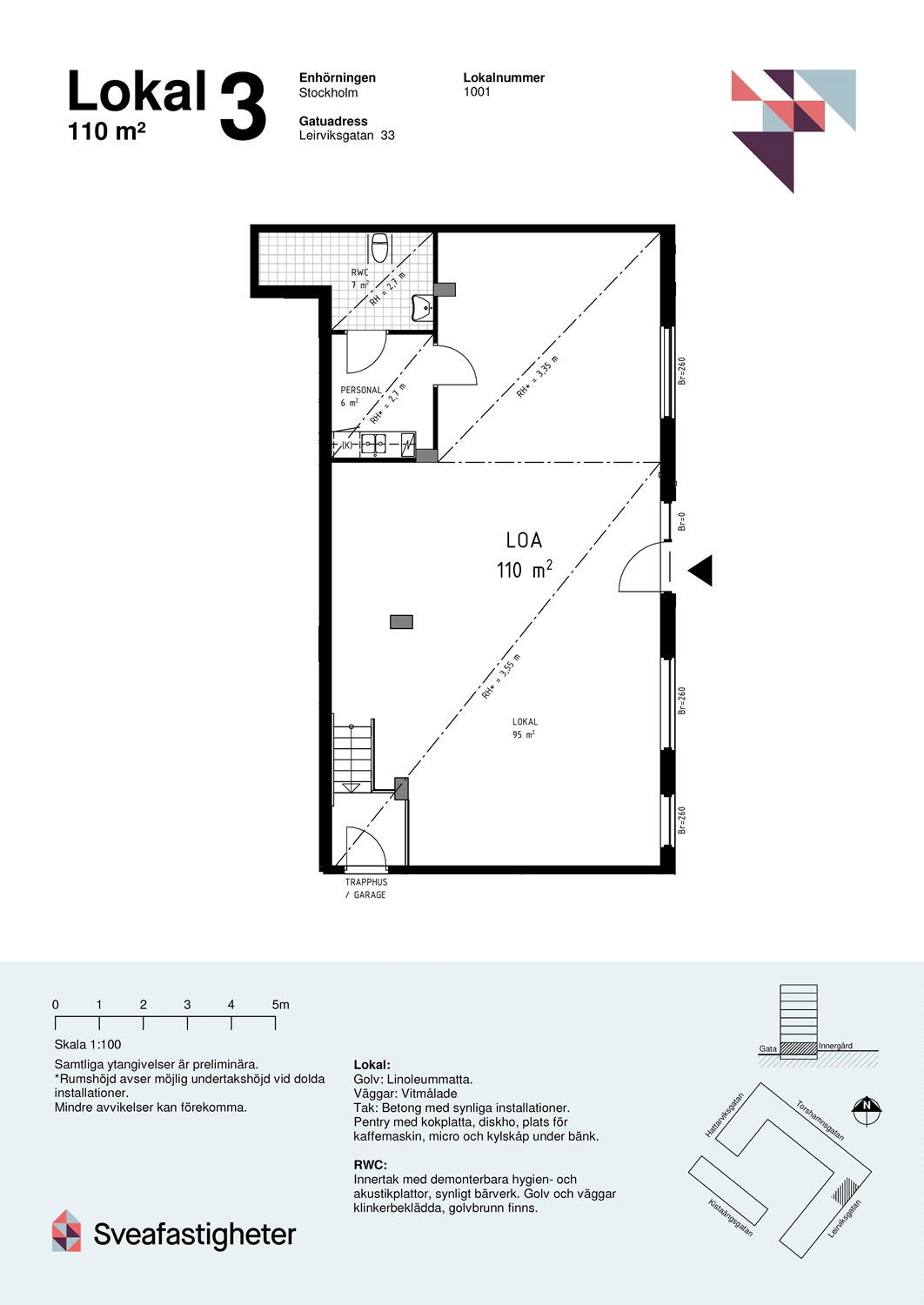
Nu finns möjlighet att etablera din verksamhet i en attraktiv nyproducerad lokal om 110 kvm på Leirviksgatan 33. Lokalen erbjuder generös takhöjd och stora glaspartier som skapar ett fantastiskt ljusinsläpp och ger utmärkt exponering mot omgivningen.

Den öppna planlösningen gör lokalen idealisk för kontor, butik, showroom eller serviceverksamhet. Här finns möjlighet att skapa en modern och representativ miljö anpassad efter just din verksamhets behov.

Fastigheten är belägen i ett expansivt och nyproducerat område med många nyinflyttade bostäder. Här ges en unik chans att tidigt etablera sig och bygga upp en stabil kundbas i takt med att området växer.

Hyra: 22 916 kr/mån.
Vatten ingår i hyran.
Värme tillkommer.

Tillträde möjligt våren 2026.

Varmt välkomna att höra av er vid intresse, ta chansen att göra detta er näst Room for business!

Fakta
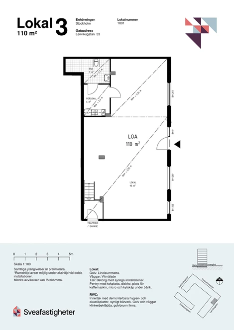
Lokaltyp: Butik/kontor
Adress: Leirviksgatan 33, 164 40 Kista
Område: Kista
Kommun: Stockholm
Totalarea: 110 kvm. Arean är uppskattad
Tillträdesdag: Enligt överenskommelse
Ekonomi
Pris: Högstbjudande
Hyra: 22 917 kr/mån
I hyran ingår: Vatten
Total månadskostnad: 22 917 kr/mån
Planskiss LOKAL 3 - 110 m²
Johnny
Kontakt
Johnny Korhonen
Fastighetsmäklare med fullständig registrering
johnny@r4b.se 070-727 49 47
Intresseanmälan